Area: 270.000 sqm
Year: 2012
Photos: Tord-Rikard Söderström
Project's description on ArchDaily:
"Emporia is first and foremost an urban planning project in which
offices, housing, and retail come together in a mixed-use development
along Boulevarden and Stationsgatan in Hyllie, on the south side of
Malmö. The main idea of our winning competition entry was to hide
inward-looking retail behind a wreath of residential and commercial
buildings. The whole shopping complex would thereby eventually become
integrated into the fabric of the city.
It is a huge development, of which only the corner building with the
Amber Entrance has yet been completed. This entrance will be the only
part of the Emporia shopping center that remains visible when the
development is completely built out. The idea of lining the streets with
mixed-use buildings demanded a strong form that could attract visitors
from Station Square to come in and shop. A sequence of vaults from a
previous competition proposal, along with a memory from the Pantheon,
reemerged in a bronze-ochre tone. Double-bent glass encloses the
diagonal slit that cuts through the building. Here the weather of the
Öresund Strait, its fast-moving clouds chasing glimpses of sun, becomes
present and tangible.
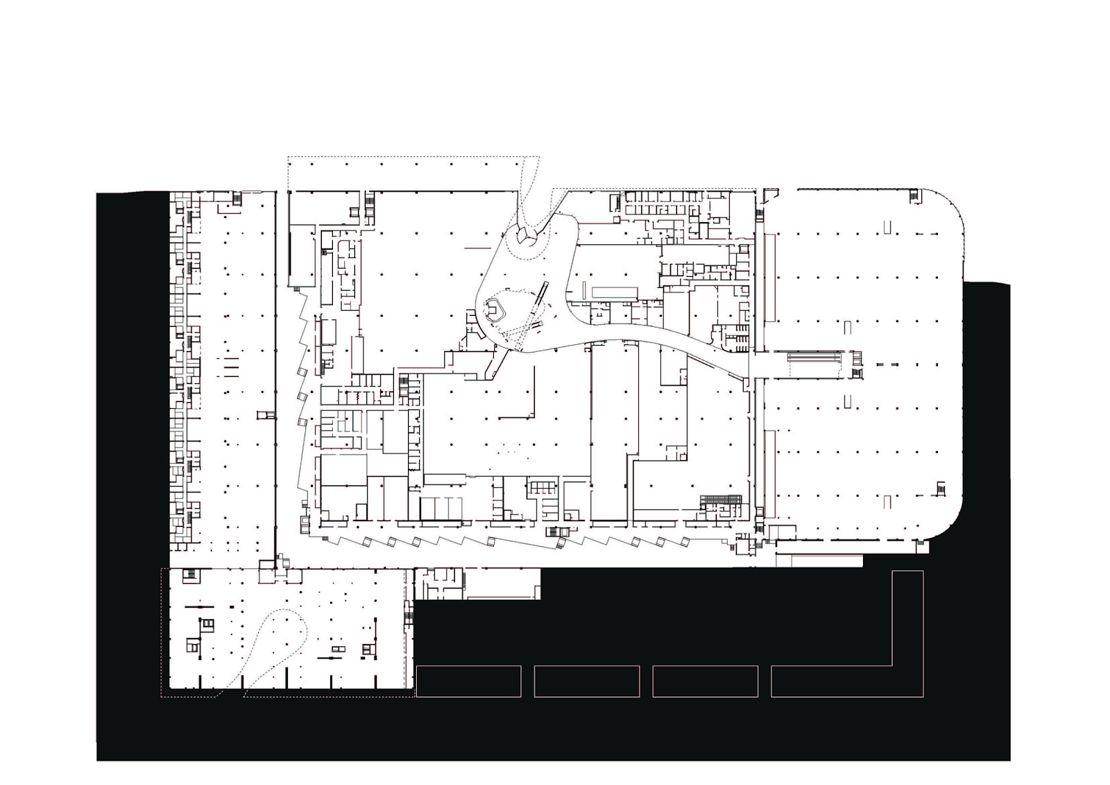
The diagonal entrance from Hyllie Station Square leads deep into the
block. Inside, retail is organized around a three-story figure eight.
Shops are grouped together around boldly colored atriums, each with a
different theme. On the north side of the complex, a ramp leads into a
rainbow-colored parking garage (for 2500 cars) with direct access to the
figure eight. To the east is a surface parking lot (for 500) right
outside the supermarket.
The rooftop park is designed as a bit of cultivated nature. Its
vegetation (sedum, prairie grass, and trees) and its sun-facing,
wind-sheltered patios are accessible from both inside and outside the
building. The hills that provide protection from the wind are actually
hiding mechanical rooms. In the future the roof will be developed with
outdoor dining and a spa facility—like amusement parks, shopping centers
need to offer new attractions at regular intervals. Emporia can expand upward and to the west, but not in any of the other
directions. The freestanding residential buildings facing Boulevarden
have yet to be built, as do those that will stand atop the podium along
Stationsgatan on the south side.
Emporia’s interior challenges established shopping center conventions.
Its bold colors and bent sightlines break with the norm, as do the
project’s size and ambition—which have made it possible to do custom
designs for everything from ceilings, floors, and storefronts to
signage, ropes of hanging plants, furniture, and cast glass door
handles. Our motto has been “no intermediate scale”—because that is the realm of
the products on display. Large-scale patterns and intricate details
characterize the interior. The terrazzo floor is typical of this
approach, with its oversized triangular joint pattern, its gradual shift
from white to graphite in seven steps, and its flashing inclusions of
colored mirror glass. The design has been wrought with extraordinary
attention to detail, down to the leather-wrapped handrails and the color
of the stitching on the built-in seating.
Emporia also includes a quantity of art seldom seen in a commercial
environment. A lighting installation (ninety-nine bollards) by Petteri
Nisunen and Tommi Grönlund lifts the Amber Entrance, bronze sculptures
by Joep van Lieshout and a glass art piece (4 x 81 m) by Silja Rantanen
adorn the Sea Entrance, and a line painting on film at an extremely
outsized format (20 x 114 m) by Per Mårtensson clads the façade of the
parking garage. On the interior is a series of photos by Signe Maria
Andersen."
- Wingårdhs




























No comments:
Post a Comment
Note: only a member of this blog may post a comment.