After publishing Courts in Coín project on July, we've come to present another project sent by Donaire Arquitectos, Spanish Architecture office from the city of Seville. This Housing Restoration in Refinadores Square project is located in Seville, and was developed and built between 2007 and 2009 with a total budget of 725.000,00 € and an area of 443 sqm.The photographic work was conducted by Fernando Alda.
We are open to receive projects from all around the world, regardless of their dimension or typology. Please send us high quality photos (indicating their authors), drawings and descriptive texts in English to our Marketing e-mail - david.cardoso@dimscale.com. It will be our pleasure to help spreading new Architecture concepts and ideas.
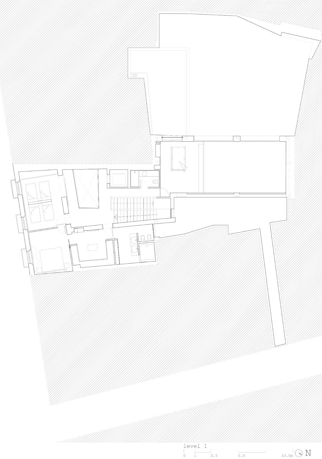
The project is an intervention in a house courtyard between medians. Type characteristic of the area, with irregular floor consisting of a significant size backyard. Be part of the conditioning of a building to be rehabilitated, with protection. The action is to generate a single family dwelling use, preserving the structure of the house, and the original hierarchical circulations with a central staircase, and stays around the yard. It features a lift, in a tangent to the yard, without altering the type of home. Downstairs are distributed access, toilet, kitchen and lounge. Distributed in the upper bedrooms and bathrooms.
Existing walls are retained, making small structural reinforcements. A study of the floor trying to retain existing ones and in the case of substitution as the cover, were executed in the same dimension and position of the originals.
The facade of the house is rehabilitated to maintain its membership of holes, using lime mortar, and woodworks suitable for the historic area.
The intervention aims to rank the rooms distributed applications in different heights. Double height in the living room, with one point, the kitchen, forming an L with the living, to generate a direct relationship with one's own backyard.
In general, the materials to be used are those of the area and the characteristics of this type of houses, but with contemporary techniques. For the areas selected marble, wood in exterior carpentry, and maintenance of existing tiles.
A simple intervention, which are enhanced by the use of local materials, the original values of the type of courtyard house from dividing.
- Donaire Arquitectos
PROJECTS WANTED is a DIMSCALE's initiative to communicate new Architecture from all around the world.
Send us your projects to david.cardoso@dimscale.com.




































No comments:
Post a Comment
Note: only a member of this blog may post a comment.